GPBuilding

¿Listo para conocer tu próximo lugar?

Acá vas a encontrar los planos de un sueño cumplido, de una inversión segura, la información para vos.

📍 BOEDO HOY 📍

Plano Boedo

Plano general de Boedo

El Edificio Boedo cuenta con 13 pisos y un diseño moderno pensado para la comodidad, funcionalidad e inversión segura de nuestros clientes. En la planta baja se ubica una unidad comercial y el hall de acceso al lado de la misma. Entre sus unidades, destacan estudios desde 22 m2, unidades monoambientes y 2 ambientes desde 50 m2 con terraza al frente y contrafrente del edificio, ideales para disfrutar momentos de recreación. Una propuesta integral que combina estilo, confort y excelente ubicación en el corazón de la Av. Boedo.

Propiedades destacadas

Descubre nuestras unidades disponibles
y el viaje hacia un sueño de inversión, hogar y rentabilidad.


PLANOS DE MI PRÓXIMA UNIDAD

Tu sueño comienza con GpBuilding

Te esperamos en nuestras oficinas para ayudarte a gestionar
tu nueva unidad, tu inversión y tu próximo paso.

Plano Boedo

Subsuelo técnico del edificio

El subsuelo del Edificio Boedo está destinado a servicios esenciales y espacios técnicos que garantizan el correcto funcionamiento del edificio. Incluye áreas como la sala de tanques, cámara transformadora, sala de medidores de electricidad y bauleras privadas. Todo el nivel está interconectado por pasillos que aseguran fácil acceso operativo y mantenimiento seguro para el personal autorizado.

Plano Planta Baja Boedo

Planta Baja – Local Comercial

La planta baja del Edificio Boedo está diseñada para potenciar el desarrollo comercial. Cuenta con un amplio local de 450 m² con frente a la calle, ideal para negocios de gran visibilidad. Posee ingreso independiente, baño de uso público, áreas técnicas y espacio para depósito, asegurando comodidad tanto para clientes como para empleados. Su disposición y accesibilidad lo convierten en un punto estratégico para cualquier tipo de emprendimiento.

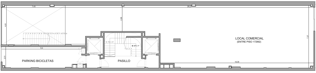
Plano Entrepiso Boedo

Entrepiso / primer piso

El entrepiso del Edificio Boedo cuenta con un local comercial de 172 m², ideal para complementar actividades del espacio principal. En el sector privado del edificio, en el primer piso cuenta un sector exclusivo de parking para bicicletas y circulación interior mediante pasillos amplios y funcionales.

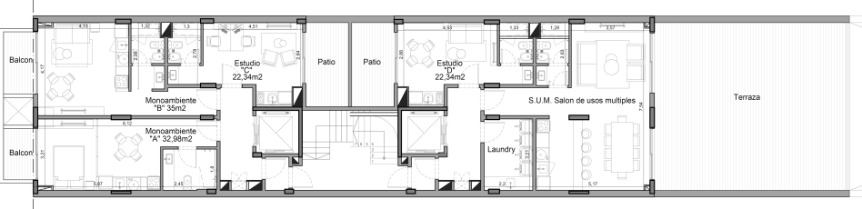
Segundo Piso

Plano pisos 3 a 12

El segundo piso del Edificio Boedo cuenta con una distribución funcional que incluye dos monoambientes (A y B), dos estudios (C y D), un sector de lavandería, un amplio SUM (Salón de Usos Múltiples) y una terraza al contrafrente. Los departamentos tienen acceso a patios internos que favorecen la ventilación e iluminación natural, mientras que el SUM y la terraza ofrecen espacios ideales para actividades sociales y recreativas.

Monoambiente A

Monoambiente A

Monoambiente A

Tipo: Monoambiente
Superficie total: 32,98 m²


Distribución

Ambiente único con cocina integrada, baño completo y espacio flexible de estar-dormitorio. Vista al contrafrente y excelente ventilación.


Monoambiente B

Monoambiente B

Monoambiente B

Tipo: Monoambiente
Superficie total: 35 m²


Distribución

Ambiente amplio con cocina integrada, baño completo y balcón con vista al frente. Muy luminoso, ideal para vivienda o estudio.


Estudio C

Estudio C

Estudio C

Tipo: Estudio
Superficie total: 22,34 m²


Distribución

Espacio compacto y funcional con baño completo y cocina equipada. Vista a patio interno, excelente iluminación natural.


Estudio D

Estudio D

Estudio D

Tipo: Estudio
Superficie total: 22,34 m²


Distribución

Diseño eficiente con baño privado, cocina integrada y vista al patio interior. Ideal para estudiantes o profesionales.


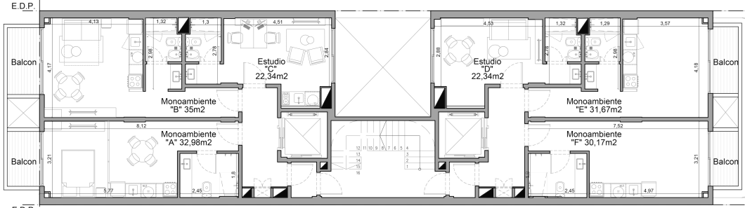
Pisos 3 a 12

Plano pisos 3 a 12

Cada uno de los pisos del 3° al 12° está conformado por seis unidades funcionales distribuidas simétricamente a ambos lados del núcleo de circulación vertical del edificio. En cada piso se encuentran:

Todas las unidades cuentan con ventilación natural, balcones o vistas abiertas, y terminaciones de alta calidad.

Unidad A

Unidad A

Unidad A

Tipo: Monoambiente
Superficie total: 32,98 m²


Distribución

Ambiente único con cocina integrada, baño completo y balcón con orientación al frente. Ideal para vivienda o estudio profesional.


Unidad B

Unidad B

Unidad B

Tipo: Monoambiente
Superficie total: 35 m²


Distribución

Espacio amplio y luminoso con cocina equipada, baño completo y balcón con vista al contrafrente. Excelente ventilación cruzada.


Unidad C

Unidad C

Unidad C

Tipo: Estudio
Superficie total: 22,34 m²


Distribución

Estudio compacto con cocina integrada, baño completo y orientación a patio interno. Funcional y bien ventilado.


Unidad D

Unidad D

Unidad D

Tipo: Estudio
Superficie total: 22,34 m²


Distribución

Unidad interna con cocina lineal, baño completo y espacio flexible. Excelente opción como primer vivienda o estudio privado.


Unidad E

Unidad E

Unidad E

Tipo: Monoambiente
Superficie total: 31,67 m²


Distribución

Espacio integrado con cocina, baño completo y balcón al frente. Buena iluminación natural durante todo el día.


Unidad F

Unidad F

Unidad F

Tipo: Monoambiente
Superficie total: 30,17 m²


Distribución

Cocina en "L", baño completo y balcón con vista al contrafrente. Excelente distribución y funcionalidad.


Experiencia Inmersiva

Recorré los 360° de Boedo

Elegí el tipo y la categoría para explorar cada unidad en 360°.

Abrir en pestaña

Tip: movete con el mouse o el dedo, hacé zoom y cambiá de escena desde las miniaturas.

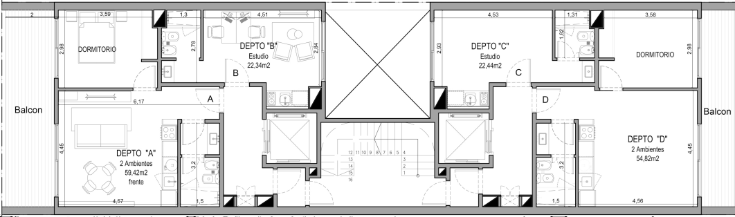
Piso 13

Plano Piso 13

El piso 13 cuenta con cuatro unidades funcionales distribuidas a ambos lados del núcleo central de circulación vertical. Esta planta ofrece dos departamentos de dos ambientes y dos estudios. A la izquierda se encuentran las unidades 13A y 13B:

A la derecha se ubican las unidades 13C y 13D: Todas las unidades cuentan con buena ventilación cruzada, luz natural y detalles de calidad en terminaciones.

13A – 2 Ambientes

Unidad 13A

Unidad 13A

Tipo: 2 Ambientes
Superficie total: 59,42 m²
Dormitorio con placard empotrado
Living-comedor al frente
Cocina integrada con barra
Balcón al frente


Características

• Excelente ventilación cruzada
• Aberturas de alta prestación
• Detalles de terminación premium
• Ideal para vivienda permanente


13B – Estudio

Unidad 13B

Unidad 13B

Tipo: Estudio
Superficie total: 22,34 m²
Cocina en “L” contra pared
Baño completo
Vista a patio interno


Características

• Ideal para estudiante o profesional
• Buena iluminación natural
• Diseño funcional y moderno
• Bajo costo de mantenimiento


13C – Estudio

Unidad 13C

Unidad 13C

Tipo: Estudio
Superficie total: 22,44 m²
Cocina contra pared
Baño completo
Ambiente abierto
Vista a patio interno


Características Destacadas

• Muy luminoso
• Perfecto como primer vivienda
• Diseño compacto y eficiente
• Posibilidad de adaptar mobiliario multifunción


13D – 2 Ambientes

Unidad 13D

Unidad 13D

Tipo: 2 Ambientes
Superficie total: 54,82 m²
Cocina integrada
Living-comedor amplio
Balcón al contrafrente


Caracteristicas

• Orientación tranquila con vista abierta
• Ideal para parejas o inversión
• Excelente circulación de aire
• Muy buena iluminación natural