El Edificio San Juan cuenta con 14 pisos y un diseño moderno pensado para la comodidad y funcionalidad. En la planta baja se ubica una unidad comercial y una Departamento 3 Amb. Entre sus amenities destacan una terraza con solárium y área de parrilla, ideales para disfrutar momentos de recreación. Una propuesta integral que combina estilo, confort y excelente ubicación en el corazón de Av. San Juan.
Propiedades destacadas


















Te esperamos en nuestras oficinas para ayudarte a gestionar
tu nueva unidad, tu inversión y tu próximo paso.
Subsuelo con espacios funcionales: sala de tanques de bombeo, lavadero común (Laundry), sala de ordenanza, cámara transformadora, sala de medidores eléctricos y de gas, y un bicicletero para 40 bicicletas numeradas. Todo conectado al núcleo de circulación vertical.
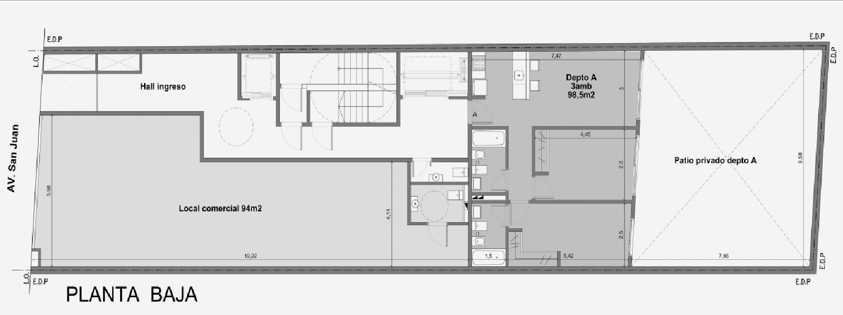
La planta baja del Edificio San Juan está diseñada para potenciar el desarrollo comercial. Cuenta con un amplio local de 94 m² con frente a la calle, ideal para negocios de gran visibilidad. Posee ingreso independiente, baño de uso privado, asegurando comodidad tanto para clientes como para empleados. Su disposición y accesibilidad lo convierten en un punto estratégico para cualquier tipo de negocio.
Tambien cuanta con una unidad de 3 ambientes y 98 m² con ambientes amplios, comodos e iluminados. Cuenta con un Patio Privado el cual tiene un amplio espacio para recreacion y descanso.
Tipo: 3 ambientes
Superficie total: 98,5 m²
Unidad exclusiva ubicada en planta baja, con acceso directo y un gran patio privado de 67,4 m² aprox., ideal para quienes buscan contacto con el exterior y espacios amplios. Para mas informacion podes descargar el plano pdf o ponerte en contacto con nosotros.
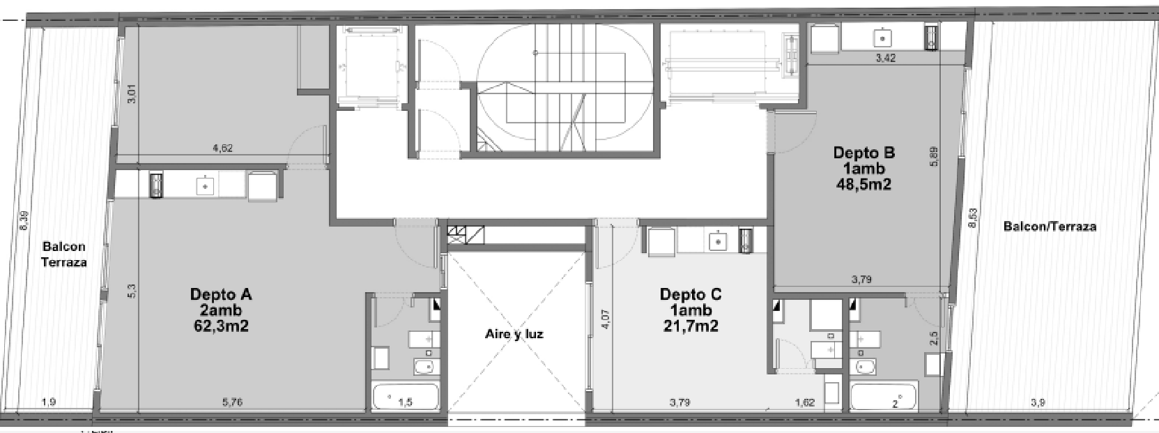
El primer piso del edificio cuenta con 5 departamentos funcionales, con superficies que van desde los 24,2 m² hasta los 62 m², adaptándose a distintas necesidades residenciales o de inversión. La planta prioriza la circulación eficiente, la luminosidad natural y la privacidad, integrando patios, balcones y espacios comunes de transición.
Tipo: Monoambiente
Superficie total: 40 m²
Ubicado al frente, con balcón sobre Av. San Juan. Cuenta con un estar-comedor amplio con cocina integrada, dormitorio independiente y baño completo. Muy luminoso y funcional, ideal para vivir o invertir.
Tipo: Monoambiente
Superficie total: 28,7 m²
Monoambiente al frente con balcón a Av. San Juan. Espacio único con cocina integrada y baño completo. Luminoso, cómodo y práctico para uso personal o renta.
Tipo: 3 ambientes
Superficie total: 62 m²
Cuenta con cocina separada, living-comedor, dos dormitorios, baño completo y balcón al contrafrente. Ideal para familias
Tipo: Monoambiente
Superficie total: 24,2 m²
Ambiente único con cocina integrada, baño completo y patio de uso exclusivo. Funcional y bien ventilado.
Tipo: Monoambiente
Superficie total: 24,2 m²
Similar al Depto D. Cuenta con cocina integrada, baño completo y patio privado. Ideal para renta o uso personal.
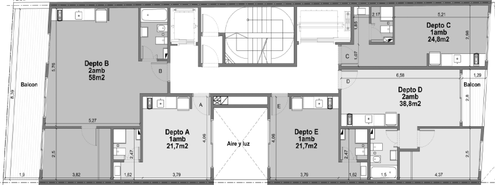
Cada uno de los pisos del 2° al 12° está conformado por seis unidades funcionales distribuidas de forma equilibrada a ambos lados del núcleo de circulación vertical del edificio.
Todas las unidades cuentan con ventilación natural, distribución eficiente y terminaciones de calidad.
Tipo: 2 ambientes
Superficie total: 43,8 m²
Estar-comedor con cocina integrada, dormitorio independiente, baño completo y balcón con orientación al frente sobre Av. San Juan. Espacios bien definidos y excelente iluminación natural.
Tipo: 1 ambiente (monoambiente)
Superficie total: 28,7 m²
Ambiente único con cocina integrada, baño completo y balcón con vista al frente sobre Av. San Juan. Unidad práctica y luminosa, ideal para renta o uso personal.
Tipo: 1 ambiente (monoambiente)
Superficie total: 24,8 m²
Ambiente único con cocina funcional, baño completo y vista abierta al frente. Unidad compacta, ideal para estudiantes, profesionales o inversión.
Tipo: 2 ambientes
Superficie total: 38,8 m²
Estar-comedor con cocina integrada, dormitorio independiente, baño completo y balcón al contrafrente. Unidad luminosa y funcional, ideal para vivir o invertir.
Tipo: 1 ambiente (monoambiente)
Superficie total: 21,7 m²
Ambiente único con cocina integrada, baño completo y vista interna a patio de aire y luz. Unidad compacta y funcional, ideal para estudiantes o renta.
Tipo: 1 ambiente (monoambiente)
Superficie total: 21,7 m²
Monoambiente con cocina integrada, baño completo y vista interna a patio de aire y luz. Diseño eficiente, ideal para estudiantes, profesionales o alquiler temporal.
Elegí el tipo y la categoría para explorar cada unidad en 360°.
Tip: movete con el mouse o el dedo, hacé zoom y cambiá de escena desde las miniaturas.
El piso 13 cuenta con cinco unidades funcionales, distribuidas simétricamente a ambos lados del núcleo central de circulación vertical. En el lado izquierdo se encuentran las unidades:
Tipo: Monoambiente
Superficie total: 21,7 m²
Ambiente único con cocina integrada
Baño completo
Vista a patio interno
• Distribución funcional
• Cocina completa
• Buena iluminación natural
• Ideal para renta o vivienda personal
Tipo: 2 Ambientes
Superficie total: 58 m²
Dormitorio independiente
Amplio living-comedor con cocina integrada
Baño completo
Balcón al frente
• Gran espacio de estar
• Cocina con buena mesada y alacena
• Ventilación cruzada y excelente luz natural
• Ideal para vivienda familiar o profesional
Tipo: 1 Ambiente
Superficie total: 24,8 m²
Cocina lineal integrada
Baño completo
Ambiente único funcional
Vista lateral
• Unidad tipo estudio
• Funcional y luminosa
• Ideal para renta o primera vivienda
• Bajo mantenimiento
Tipo: 2 Ambientes
Superficie total: 38,8 m²
Dormitorio con placard
Living-comedor con cocina integrada
Baño completo
Balcón al contrafrente
• Espacios bien distribuidos
• Buena iluminación natural
• Ideal para vivienda o inversión
• Diseño moderno y funcional
Tipo: Monoambiente
Superficie total: 21,7 m²
Ambiente único con cocina integrada
Baño completo
Vista interna
• Distribución funcional
• Cocina con buen aprovechamiento del espacio
• Ideal para estudiantes, renta o primera vivienda
• Iluminación natural eficiente
El piso 14 cuenta con tres unidades funcionales, ubicadas a ambos lados del núcleo de circulación vertical. En el lado izquierdo se encuentra la unidad:
Tipo: 2 Ambientes
Superficie total: 62,3 m²
Dormitorio con placard
Cocina integrada
Living-comedor al frente
Balcón terraza al frente
• Amplia superficie con distribución cómoda
• Gran luminosidad y ventilación cruzada
• Ideal para vivienda permanente
• Detalles de calidad en terminaciones
Tipo: Monoambiente
Superficie total: 48,5 m²
Cocina lineal integrada
Espacio único amplio
Baño completo
Balcón terraza al contrafrente
• Muy luminoso y ventilado
• Amplio balcón terraza
• Apto profesional
• Ideal como inversión o primera vivienda
Tipo: Monoambiente
Superficie total: 21,7 m²
Cocina integrada
Baño completo
Vista interna a aire y luz
• Compacto y funcional
• Buena iluminación
• Ideal para estudio o renta
• Terminaciones de calidad